Frequently Asked Questions
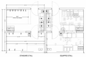
Element Eatery will provide the stall and kitchen equipment. The facility fee includes property tax, insurance and utilities.
The Vendor will be responsible for up-fitting their stall with cooking items, signage, and decoration. Additional startup costs include but are not limited to: permits, fees and costs associated with authorization with state and local permitting organizations.

